For Sale
Cherokee
Holstein
Galva
Aurelia
Acreages
Lots and Land
Surrounding Area
Virtual Tours
Agents
About Us
Community Info
Cherokee
Holstein
Storm Lake
Paullina
Marcus
Aurelia
Contact Us
Acreage
Home
Archive for Category: Acreage
Grid
List
Acreage
$ 285,000.00
1643 440th Street, Larrabee, Iowa 51029. SOLD!!!!!!
1643 440th Street, Larrabee, Iowa 51029
1832/ft
2
Area
3
Beds
3
Baths
1
Floors
Acreage
$ 295,000.00
4509 120th St Correctionville Iowa 51016. PENDING!!!!!!
4509 120th St Correctionville Iowa 51016.
2234/ft
2
Area
3
Beds
2
Baths
1.5
Floors
3
Garages
Acreage
$ 115,000.00
14338 Quest Ave Remsen Iowa 51050. SOLD!!!
14338 Quest Ave Remsen Iowa 51050.
1541/ft
2
Area
4
Beds
2
Baths
1.5
Floors
4
Garages
Acreage
$ 279,000.00
6472 O Avenue, Quimby, Iowa 51049 SALE PENDING!!!
6472 O Avenue, Quimby, Iowa 51049
2535/ft
2
Area
5
Beds
2
Baths
2
Floors
2
Garages
Acreage
$ 499,000.00
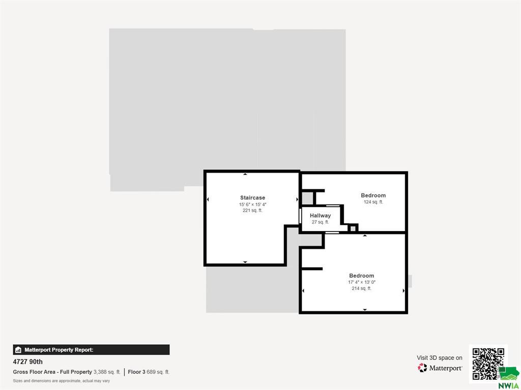
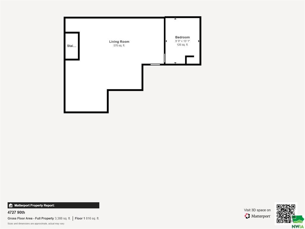
4727 90th Ave. Linn Grove, IA 51033 SOLD!!!
4727 90th Ave. Linn Grove, IA 51033
3208/ft
2
Area
5
Beds
2
Baths
3
Floors
4
Garages